
For Sale
Real Estate/Business: Personal Care Home
118-122 S. 10th St. Lebanon, PA 17042
Lebanon County
Property Information
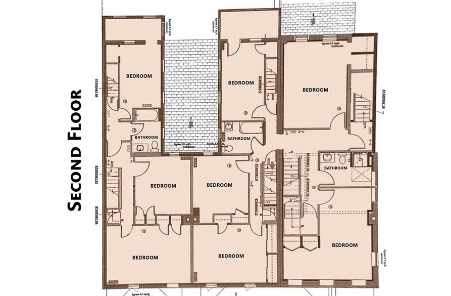
Total Building Size: 7,218 SF, over Three (3) Buildings
Sale Price: $1,150,000
# of Licensed Beds: 36
Occupancy: 92%
Land/Lot Size: 0.07 acres
Property Highlights
Real Estate & Business: Dowhower Personal Care Home, a 36 bed Personal Care facility covering 7,218 SF over three (3) buildings.
Click on the brokers photo to send them an email.
Brokers
Darin R. Wolfe
Property Description
We are pleased to present this unique and long-standing business and real estate opportunity for sale in the City of Lebanon, PA. The offering includes both the real estate and the business enterprise, reflecting the property’s established presence in the marketplace.
Real Estate
The property consists of three (3) interconnected three-story buildings situated on approximately 0.07 acres. It currently operates as the Dowhower Personal Care Home, a personal care facility licensed for 36 beds.
The buildings encompass approximately 7,218 SF and are located just off the core of downtown Lebanon in the Central Business District. The facility’s use provides robust infrastructure, including in-place power, plumbing, heating, laundry, and commercial kitchen capabilities.
Nearby amenities include the Lebanon Farmers’ Market, various businesses, and other downtown attractions.
Dowhower Personal Care Home
Dowhower Personal Care Home operates as a full-service Personal Care facility, licensed for 36 beds. While the overall resident mix includes private pay and financial assistance, the nearby VA Hospital in Lebanon serves as a referral source for a number of residents. Rooms vary in size and are all are semi-private rooms. Current occupancy is at approximately 92%.
Financial information is available and will be provided to qualified prospects upon the completion and acceptance of a Non-Disclosure Agreement (NDA) by the seller.
Location Map


























